ARQUITECTURA DE VANGUARDIA POR MENOS DE LO QUE IMAGINAS

Ubicación

Olías del Rey (Toledo)

Descripción

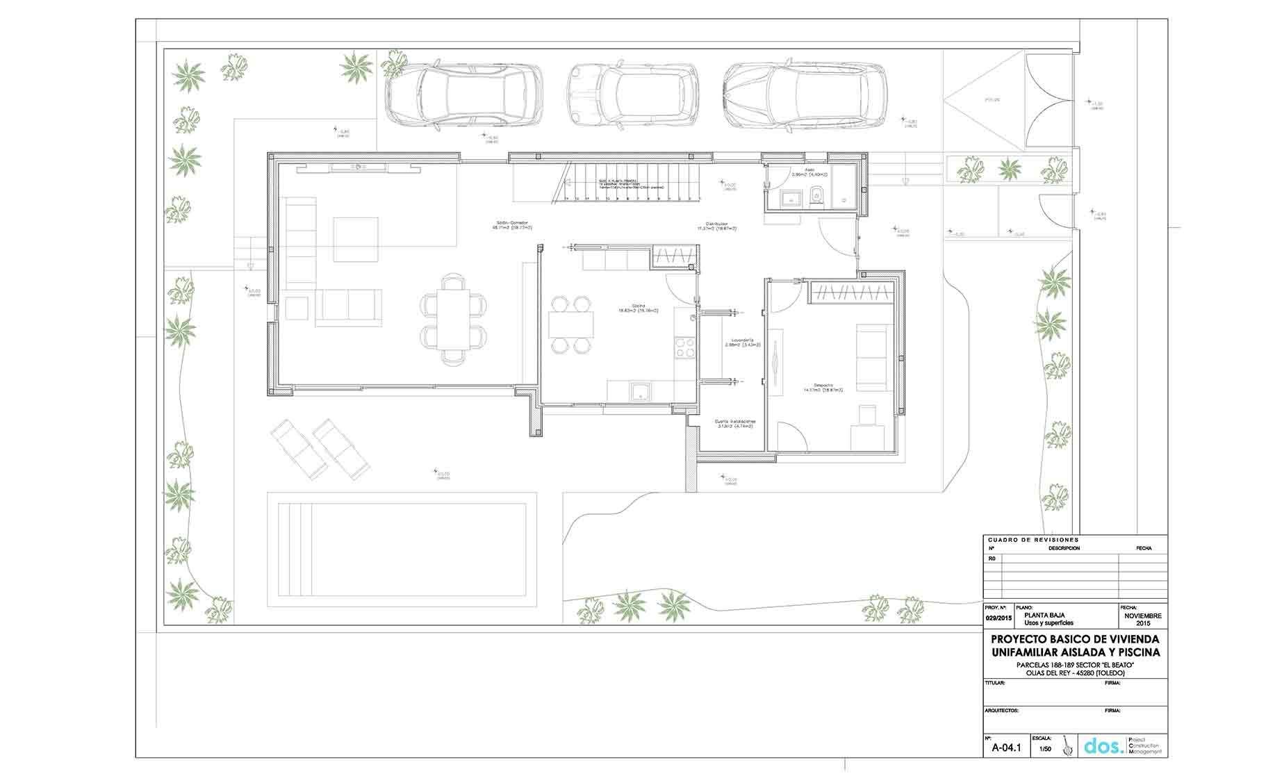
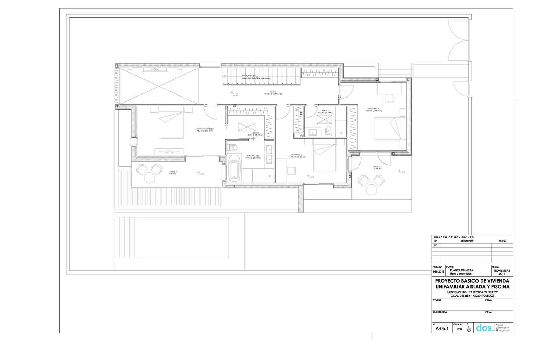
El cliente disponía de una parcela donde edificar su primera vivienda, por lo que acudió a nosotros con una serie de necesidades muy concretas, lo escuchamos y nos pusimos manos a la obra, redactamos el proyecto básico y posteriormente el de ejecución, obtuvimos todos los permisos municipales y el cliente pudo hacer realidad su sueño.

Proyectos / Olías del Rey (Toledo)

Contacte con Nosotros

Llame al  910 272 978

O envie un correo a Esta dirección de correo electrónico está siendo protegida contra los robots de spam. Necesita tener JavaScript habilitado para poder verlo.

Solicite presupuesto

Nos pondremos en contacto con usted de forma inmediata.

Utilizamos cookies propias y de terceros con finalidades estadísticas y para proporcionarle servicios de valor añadido como la ubicación de nuestras oficinas. Si continúa navegando, consideramos que acepta su uso.

Puede obtener más información o conocer cómo cambiar la configuración de su navegador consultando nuestra Política de Cookies. Saber más

Acepto