ARQUITECTURA DE VANGUARDIA POR MENOS DE LO QUE IMAGINAS

Ubicación

Coslada (Madrid)

Descripción

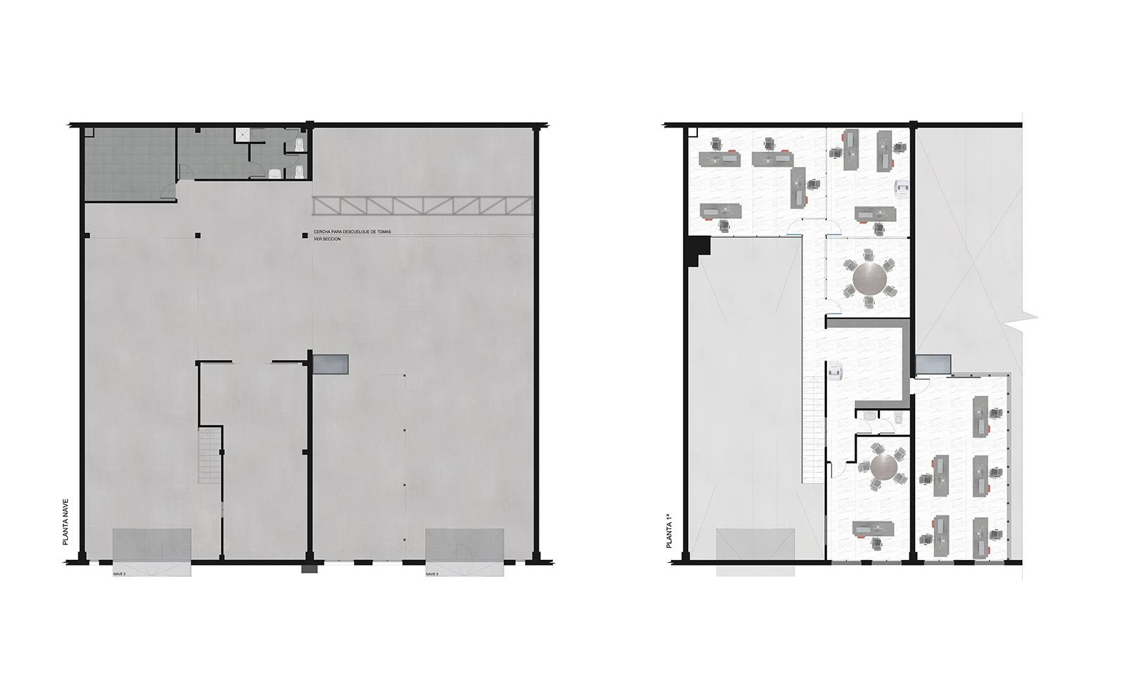
En esta ocasión se le ofreció al cliente un trabajo integral, compuesto por el Proyecto, tanto de licencia de actividad y obras, como de legalización de instalación contra incendios.

Se llevó a cabo la toma de datos de la nave y nuestro equipo técnico, junto con los diseñadores, realizaron una propuesta para la reforma integral de la nave.

Como se puede apreciar en las fotografías, se trataba de una nave muy descuidada, con muchos años de servicio acumulados y el cliente necesitaba acondicionarla por completo, cambiando toda la instalación eléctrica, fontanería, instalando nueva instalación de protección contra incendios y realizando nueva división de espacios. En las fotografías, se puede comprobar que la ejecución de los trabajos fue fiel al diseño inicial, dando un resultado muy atractivo .

Corporativos / Las Rozas (Madrid)

  • Coslada - Covimatic
  • Coslada - Covimatic
  • Coslada - Covimatic
  • Coslada - Covimatic
  • Coslada - Covimatic
  • Coslada - Covimatic
  • Coslada - Covimatic
  • Coslada - Covimatic
  • Coslada - Covimatic
  • Coslada - Covimatic
  • Coslada - Covimatic
  • Coslada - Covimatic
  • Coslada - Covimatic
  • Coslada - Covimatic
  • Coslada - Covimatic
  • Coslada - Covimatic
  • Coslada - Covimatic
  • Coslada - Covimatic
  • Coslada - Covimatic
  • Coslada - Covimatic
  • Coslada - Covimatic
  • Coslada - Covimatic
  • Coslada - Covimatic
  • Coslada - Covimatic

Contacte con Nosotros

Llame al  910 272 978

O envie un correo a Esta dirección de correo electrónico está siendo protegida contra los robots de spam. Necesita tener JavaScript habilitado para poder verlo.

Solicite presupuesto

Nos pondremos en contacto con usted de forma inmediata.

Utilizamos cookies propias y de terceros con finalidades estadísticas y para proporcionarle servicios de valor añadido como la ubicación de nuestras oficinas. Si continúa navegando, consideramos que acepta su uso.

Puede obtener más información o conocer cómo cambiar la configuración de su navegador consultando nuestra Política de Cookies. Saber más

Acepto